Porzione di trifamiliare in vendita

Campi Bisenzio, Via S.Martino
€ 398.000
5 locali 5 locali
150 Mq 150 Mq
2 bagni 2 bagni

Porzione di trifamiliare in vendita

Campi Bisenzio, Via S.Martino

Descrizione annuncio

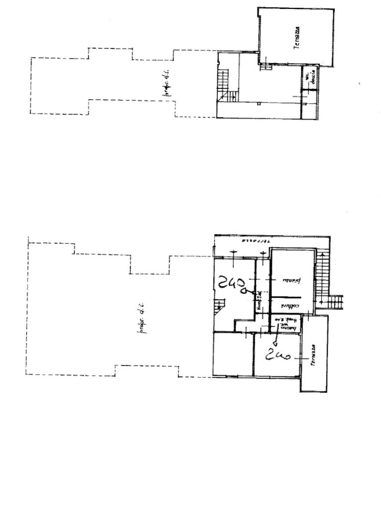
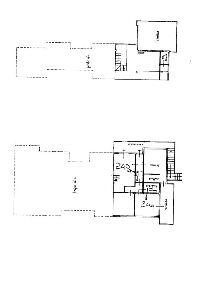
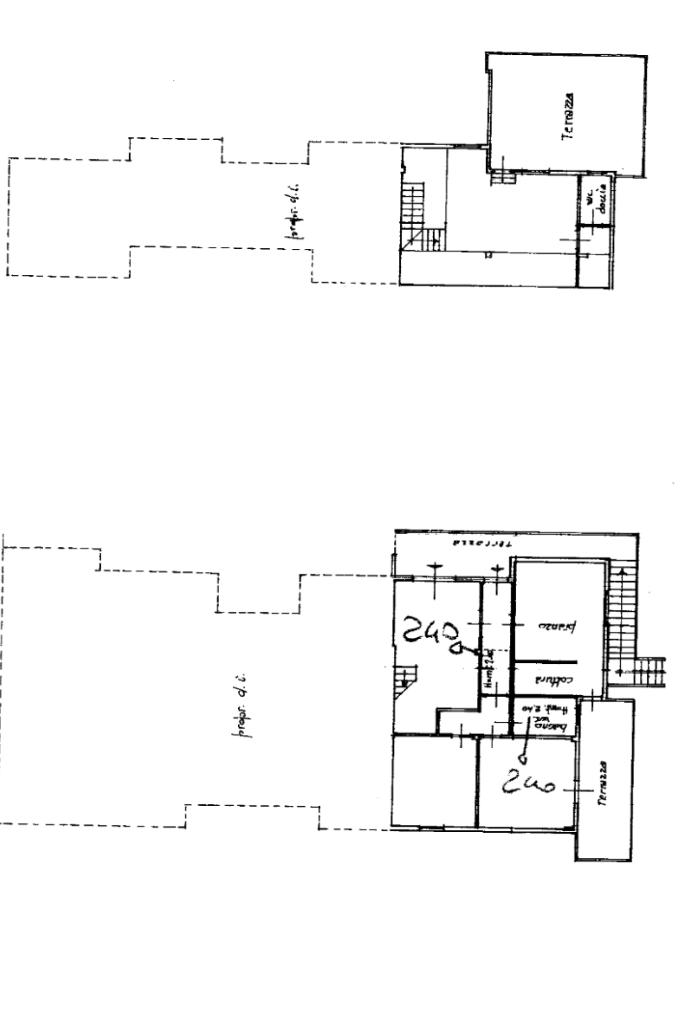
SAN MARTINO – Porzione di trifamiliare con ingresso indipendente, giardino e mansarda abitabile

Nella zona di San Martino proponiamo in vendita una porzione di trifamiliare con ingresso indipendente, perfetta per chi cerca la comodità di una casa autonoma, con ampi spazi interni ed esterni, senza rinunciare alla vicinanza ai principali servizi.

L’ingresso si apre su un giardino privato di ben 165 mq, un vero angolo di relax ideale per cene all’aperto, momenti conviviali o per far giocare in totale sicurezza i bambini.

Una scala esterna conduce al terrazzo d’ingresso, da cui si accede all’interno dell’abitazione.
La zona giorno è ben distribuita: sulla destra troviamo il soggiorno con affaccio diretto sul terrazzo, mentre sulla sinistra si apre una cucina abitabile con accesso a un ulteriore terrazzo.

La zona notte si compone di due camere matrimoniali e un bagno finestrato con vasca.

Dal soggiorno, una scala interna ci accompagna al piano mansardato, un ambiente versatile che può essere utilizzato come terza camera da letto, studio, sala hobby o area relax.
Questo piano dispone inoltre di un secondo bagno finestrato con doccia e di un ampio terrazzo abitabile, ideale per godersi momenti di pace e sole in completa privacy.

A completare la proprietà troviamo un garage privato di 16 mq.

Questa soluzione rappresenta la sintesi ideale tra indipendenza, comfort e funzionalità, perfetta per famiglie o per chi desidera una casa accogliente e pronta da vivere in una zona residenziale e ben servita.

Contattaci per fissare una visita e scoprire ogni dettaglio di questa interessante proposta!

Mostra tutto

Nelle vicinanze

Trasporto pubblico Trasporto pubblico
Torricella
Torricella
40 m
Terracini
Terracini
80 m
Ricariche auto elettriche Ricariche auto elettriche
Concessionaria Mercedes-Benz | EnelX
1,6 Km
Scuole Scuole
Scuola Primaria Lorenzo il Magnifico
420 m
Scuola dell'infanzia San Giusto
780 m
Scuola Primaria Fra Ristoro
930 m
Scuola Materna Lorenzini
1,1 Km
Scuola Media Statale Felice Matteucci
1,1 Km
Farmacia Farmacia
E. Rossi
860 m
Farmacia San Martino
880 m
Giglioli
1,0 Km
Comunale 3
1,1 Km
Farmacia Cottino
1,5 Km
Ospedali Ospedali
Azienda USL Toscana centro - distretto Campi Bisenzio
1,3 Km
Supermercati Supermercati
Esselunga di Campi Bisenzio
850 m
Coop
1,1 Km
Lidl
1,1 Km
Penny Market
1,4 Km
Negozi Negozi
La Focaccia
860 m
United Colors of Benetton
910 m
Estranea Store
910 m
Pan di Zucchero
2,9 Km
Bar Bar
hidron
790 m
La Dolceria
1,1 Km
Circolo MCL il Gorinello
1,1 Km
Bar Giacomelli Simone & C.
1,4 Km
Bar Lanciotto
2,2 Km
Ristoranti Ristoranti
Meryanna
740 m
L'intingolo
820 m
La Tana dei Ghiotti
930 m
Hong Li
990 m
Da Rodolfo
1,0 Km
Mostra tutto

Caratteristiche

Rif.:
61114063
Piano:
Basso di 2
Totale piani:
2
Box:
1
Terrazzi:
3
Camere da letto:
2
Mostra tutto
Prezzo Prezzo
€ 398.000
Rata mutuo Rata mutuo
€ 1.835 / mese
Spese annue Spese annue
€ 0
Proponi il tuo prezzoProponi il tuo prezzo

Classe Energetica

Questo immobile è esente da classe energetica
Anno di costruzione:
1983
Riscaldamento:
Autonomo
Tipo impianto:
A radiatori
Tipo alimentazione:
Metano

Ti interessa visionare l'immobile?

Fissa un appuntamento  Fissa un appuntamento

Richiedi informazioni

* Questi campi sono obbligatori

Calcola il tuo mutuo

Semplice e senza impegno
Anticipo

( % )
Mutuo

( % )

pochi semplici passi

inserisci i tuoi dati
Questionario completato
Grazie per aver richiesto un appuntamento senza impegno con un nostro Consulente del Credito e Assicurativo.

Hai inserito correttamente tutti i dati necessari e a breve riceverai una e-mail con un link da convalidare per inviare i tuoi dati.
Affiliato
Studio Bisenzio Sas
Via Barberinese, 90b 50013 Campi Bisenzio (FI)

Il nostro staff


  • Armando Vladimiro Tricoci
    Affiliato

  • Mina Esposito
    Responsabile

  • Lorenzo Franceschini
    Collaboratore

  • Rebecca Mammoli
    Coordinatrice
Via Barberinese, 90b 50013 Campi Bisenzio (FI)
Zona: Campi Bisenzio - S.Martino - S.Lorenzo - S.Maria - Capalle
Mostra su mappa
Orari: lunedì-venerdì 09.00-13.00 15.00-20.00; sabato 9.00-13.00 15.30-18.00; domenica su appuntamento.
Affiliato
Studio Bisenzio Sas
Via Barberinese, 90b 50013 Campi Bisenzio (FI)

2025 Tecnocasa Franchising S.p.A. - P. IVA 08365160152 - Via Monte Bianco 60/A 20089 Rozzano (MI). Ogni agenzia ha un proprio titolare ed è autonoma. Privacy policy | Policy utilizzo | Cookie policy