Bilocale in vendita

Campi Bisenzio, Via dell' olmo
€ 168.000
2 locali 2 locali
50 Mq 50 Mq
1 bagno 1 bagno

Bilocale in vendita

Campi Bisenzio, Via dell' olmo

Descrizione annuncio

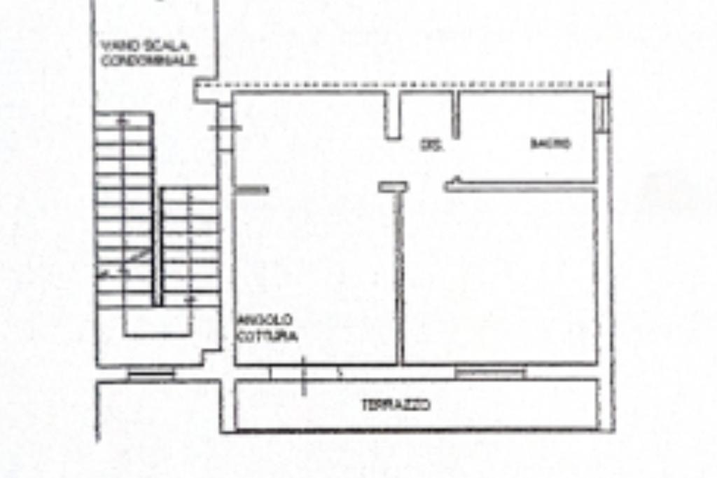
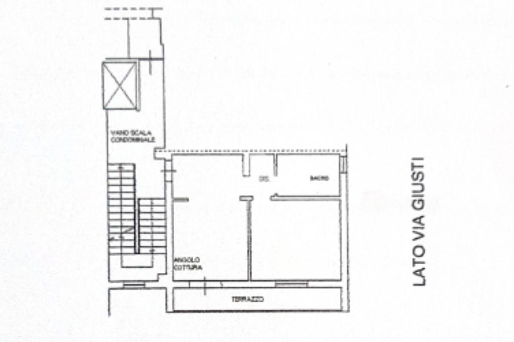
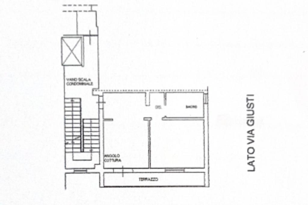
Via dell'olmo, Appartamento di due vani con terrazzo, posto auto e cantina.

Proponiamo in vendita un bilocale situato al piano terra, ideale per chi desidera comodità e spazi ben organizzati.

L’ingresso si apre sulla zona giorno composta da soggiorno con angolo cottura, un ambiente funzionale e ben distribuito, con accesso diretto al terrazzo tramite porta finestra. Il terrazzo, dalla forma stretta e sviluppata in lunghezza, rappresenta uno spazio esterno di servizio, utile come sfogo dell’abitazione.

La zona notte è composta dalla camera matrimoniale, mentre il bagno finestrato completa l’interno dell’abitazione.

A valorizzare ulteriormente la proprietà troviamo un comodo posto auto e una cantina, elementi che garantiscono praticità e spazio aggiuntivo.

L’immobile è situato in una zona molto servita: nelle immediate vicinanze troviamo scuole, negozi e i principali servizi, rendendo la soluzione particolarmente comoda per la vita quotidiana.

Per maggiori informazioni o per prenotare una visita, non esitare a contattarci. Siamo a tua completa disposizione per rispondere a tutte le tue domande e accompagnarti nella scoperta di questa interessante opportunità.

Chiama il 055892009 o inviaci un messaggio su WhatsApp al numero 3927221028.

Seguici sui nostri canali social per restare sempre aggiornato sulle ultime novità nel mondo del real estate:

Facebook


Instagram


TikTok

Soluzione interessante sia come prima casa che come investimento.

Mostra tutto

Nelle vicinanze

Trasporto pubblico Trasporto pubblico
Olmo
Olmo
50 m
Santa Maria 164
Santa Maria 164
120 m
Ricariche auto elettriche Ricariche auto elettriche
Concessionaria Mercedes-Benz | EnelX
910 m
Scuole Scuole
Scuola media statale Giuseppe Garibaldi
220 m
Liceo Agnoletti
250 m
Scuola di musica
820 m
Scuola Materna Lorenzini
850 m
Scuola Media Statale Felice Matteucci
850 m
Farmacia Farmacia
E. Rossi
630 m
Farmacia Comunale
870 m
Giglioli
880 m
Farmacia San Martino
1,1 Km
Comunale 3
1,3 Km
Ospedali Ospedali
Azienda USL Toscana centro - distretto Campi Bisenzio
1,1 Km
Supermercati Supermercati
Lidl
740 m
Coop
990 m
Esselunga di Campi Bisenzio
1,3 Km
Pam
2,2 Km
Penny Market
2,6 Km
Negozi Negozi
Estranea Store
630 m
La Focaccia
650 m
United Colors of Benetton
710 m
Pan di Zucchero
2,5 Km
Marina Militare sportswear
2,9 Km
Bar Bar
Bar Giacomelli Simone & C.
470 m
La Dolceria
660 m
Bar Lanciotto
1,0 Km
Bar Primavera
1,1 Km
hidron
1,4 Km
Ristoranti Ristoranti
Da Rodolfo
420 m
L'intingolo
690 m
La Tana dei Ghiotti
750 m
Self Service La forchetta
820 m
Hong Li
820 m
Mostra tutto

Caratteristiche

Rif.:
61196060
Piano:
Terra di 3 con ascensore
Totale piani:
3
Posti auto:
1
Terrazzi:
1
Camere da letto:
1
Mostra tutto
Prezzo Prezzo
€ 168.000
Rata mutuo Rata mutuo
€ 798 / mese
Spese annue Spese annue
€ 570
Proponi il tuo prezzoProponi il tuo prezzo

Classe Energetica

Questo immobile è esente da classe energetica
Anno di costruzione:
2006
Riscaldamento:
Autonomo
Tipo impianto:
A radiatori
Tipo alimentazione:
Metano

Ti interessa visionare l'immobile?

Fissa un appuntamento  Fissa un appuntamento

Richiedi informazioni

Clicca su Leggi per aprire l'informativa
* Questi campi sono obbligatori

Calcola il tuo mutuo

Semplice e senza impegno
Anticipo

( % )
Mutuo

( % )

pochi semplici passi

inserisci i tuoi dati
Questionario completato
Grazie per aver richiesto un appuntamento senza impegno con un nostro Consulente del Credito e Assicurativo.

Hai inserito correttamente tutti i dati necessari e a breve riceverai una e-mail con un link da convalidare per inviare i tuoi dati.
Affiliato
Studio Bisenzio Sas
Via Barberinese, 90b 50013 Campi Bisenzio (FI)

Il nostro staff


  • Armando Vladimiro Tricoci
    Affiliato

  • Mina Esposito
    Collaboratrice

  • Lorenzo Franceschini
    Collaboratore

  • Andrea Gesualdi
    Collaboratore

  • Rebecca Mammoli
    Coordinatrice
Via Barberinese, 90b 50013 Campi Bisenzio (FI)
Zona: Campi Bisenzio - S.Martino - S.Lorenzo - S.Maria - Capalle
Mostra su mappa
Orari: lunedì-venerdì 09.00-13.00 15.00-20.00; sabato 9.00-13.00 15.30-18.00; domenica su appuntamento.
Affiliato
Studio Bisenzio Sas
Via Barberinese, 90b 50013 Campi Bisenzio (FI)

2026 Tecnocasa Franchising S.p.A. - P. IVA 08365160152 - Via Monte Bianco 60/A 20089 Rozzano (MI). Ogni agenzia ha un proprio titolare ed è autonoma. Privacy policy | Policy utilizzo | Cookie policy