Trilocale in vendita

Campi Bisenzio, Via San Quirico - Capalle
€ 179.000
Prezzo aggiornato
3 locali 3 locali
70 Mq 70 Mq
2 bagni 2 bagni

Trilocale in vendita

Campi Bisenzio, Via San Quirico - Capalle

Descrizione annuncio

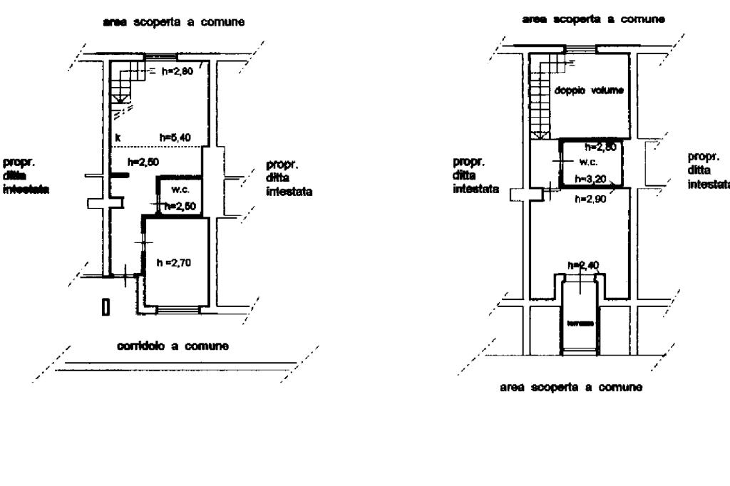
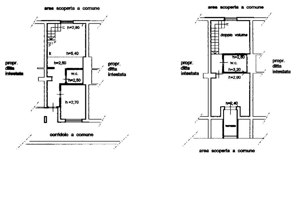
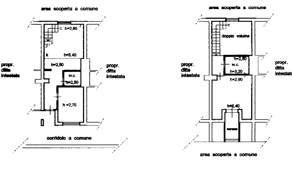
Campi Bisenzio – Via San Quirico , trilocale su due livelli con doppi servizi e posto auto coperto.

In Via San Quirico proponiamo in vendita un appartamento di tre vani disposto su due livelli, completo di posto auto coperto.

L’ingresso si apre sulla zona giorno, composta da soggiorno con angolo cottura, una camera e un bagno. Dal soggiorno una scala conduce al piano superiore, dove si trovano la camera matrimoniale, rifinita in parquet con accesso al balcone, e il secondo bagno.

L’immobile dispone inoltre di un soppalco, ideale come studio o zona relax.

La disposizione interna offre ambienti adatti a chi cerca una soluzione funzionale in una zona comoda e ben collegata.

Per maggiori informazioni o per prenotare una visita, non esitare a contattarci. Siamo a tua completa disposizione per rispondere a tutte le tue domande e accompagnarti nella scoperta di questa interessante opportunità.

Chiama il 055892009 o inviaci un messaggio su WhatsApp al numero 3927221028.

Seguici sui nostri canali social per restare sempre aggiornato sulle ultime novità nel mondo del real estate:

Facebook


Instagram


TikTok

Mostra tutto

Nelle vicinanze

Trasporto pubblico Trasporto pubblico
Telecom
Telecom
200 m
I Gigli
I Gigli
660 m
Calenzano
Calenzano
880 m
Pratignone
Pratignone
1,1 Km
Ricariche auto elettriche Ricariche auto elettriche
Calenzano Cherzani | EnelX
1,7 Km
Officina Bi Auto | EnelX
2,4 Km
Calenzano A.S.D. Settimello | EnelX
2,7 Km
Concessionaria Mercedes-Benz | EnelX
2,8 Km
Scuole Scuole
Scuola Primaria Emilio Salgari
1,8 Km
Design Campus
1,9 Km
Residenza Margherita Hack
2,0 Km
Scuola media statale Giuseppe Garibaldi
2,6 Km
Liceo Agnoletti
2,6 Km
Farmacia Farmacia
Della Marina
860 m
Parafarmacia E' Qui
1,5 Km
Farmacia Comunale
2,0 Km
Balducci
2,5 Km
Farmacia di Mezzana
2,7 Km
Supermercati Supermercati
Pam
360 m
Carrefour Calenzano
1,5 Km
Conad
1,8 Km
Incoop
2,3 Km
Penny Market
2,4 Km
Negozi Negozi
Marina Militare sportswear
350 m
Nencini Sport 5
1,6 Km
Negozi
1,8 Km
Nencini Sport 2
1,9 Km
Starbene Senza Glutine
2,6 Km
Bar Bar
Bareostato
480 m
Il nuovo molino
1,5 Km
Circolo Arci Il Molino
1,5 Km
Bar Primavera
1,7 Km
Cartabianca Café
1,8 Km
Ristoranti Ristoranti
I 4 venti
240 m
Roadhouse
650 m
Ristoranti
650 m
Ciak Si Mangia
920 m
Chiaroscuro
1,1 Km
Mostra tutto

Caratteristiche

Rif.:
61126373
Piano:
4 di 4 con ascensore (Piano alto)
Posti auto:
1
Balconi:
1
Camere da letto:
2
Arredamento:
Assente
Mostra tutto
Prezzo Prezzo
€ 179.000
Rata mutuo Rata mutuo
€ 845 / mese
Spese annue Spese annue
€ 900
Proponi il tuo prezzoProponi il tuo prezzo

Classe Energetica

Questo immobile è esente da classe energetica
Anno di costruzione:
1992
Riscaldamento:
Autonomo
Tipo impianto:
A radiatori
Tipo alimentazione:
Metano

Prezzo ridotto di €1 (5%%)

Ti interessa visionare l'immobile?

Fissa un appuntamento  Fissa un appuntamento

Richiedi informazioni

Clicca su Leggi per aprire l'informativa
* Questi campi sono obbligatori

Calcola il tuo mutuo

Semplice e senza impegno
Anticipo

( % )
Mutuo

( % )

pochi semplici passi

inserisci i tuoi dati
Questionario completato
Grazie per aver richiesto un appuntamento senza impegno con un nostro Consulente del Credito e Assicurativo.

Hai inserito correttamente tutti i dati necessari e a breve riceverai una e-mail con un link da convalidare per inviare i tuoi dati.
Affiliato
Studio Bisenzio Sas
Via Barberinese, 90b 50013 Campi Bisenzio (FI)

Il nostro staff


  • Armando Vladimiro Tricoci
    Affiliato

  • Mina Esposito
    Collaboratrice

  • Lorenzo Franceschini
    Collaboratore

  • Rebecca Mammoli
    Coordinatrice
Via Barberinese, 90b 50013 Campi Bisenzio (FI)
Zona: Campi Bisenzio - S.Martino - S.Lorenzo - S.Maria - Capalle
Mostra su mappa
Orari: lunedì-venerdì 09.00-13.00 15.00-20.00; sabato 9.00-13.00 15.30-18.00; domenica su appuntamento.
Affiliato
Studio Bisenzio Sas
Via Barberinese, 90b 50013 Campi Bisenzio (FI)

2025 Tecnocasa Franchising S.p.A. - P. IVA 08365160152 - Via Monte Bianco 60/A 20089 Rozzano (MI). Ogni agenzia ha un proprio titolare ed è autonoma. Privacy policy | Policy utilizzo | Cookie policy